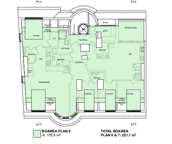
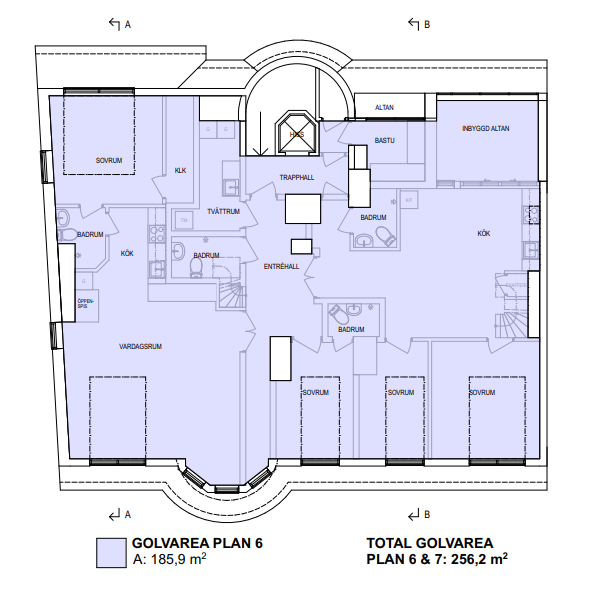
Välkommen till en unik möjlighet att förvärva en nyrenoverad vindsvåning på en av Södermalms mest attraktiva adresser – Lundagatan 31. Här skapas just nu ett hem i absolut toppklass, där modern arkitektur möter klassiska vindskaraktärer med generös takhöjd, synliga takbjälkar och en känsla av rymd.
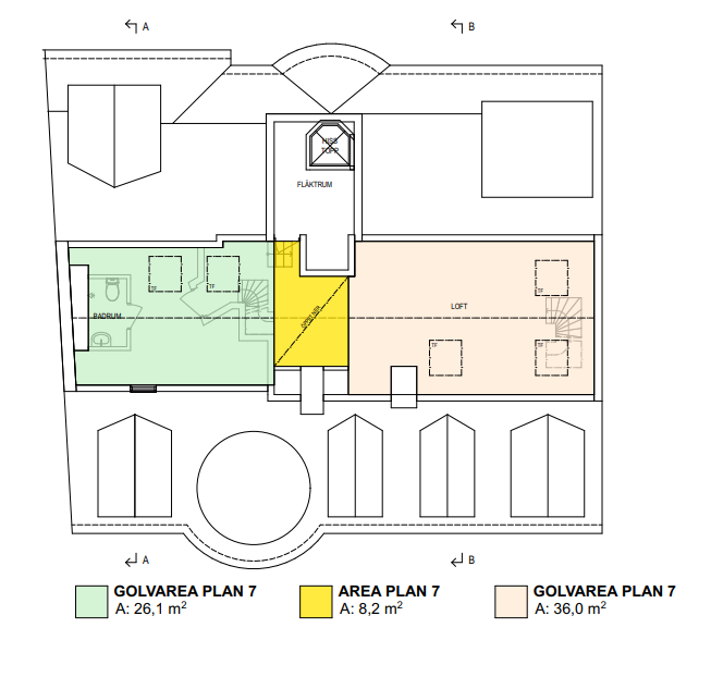
Det tillhör ett rum till lägenheten på ca 10kvm som ligger på markplan.
- Äganderätt – ingen bostadsrättsförening
- Juridisk person kan förvärva
-Takhöjd upp till ca 5 meter till nock
-Utsikt i flera väderstreck
-Öppen spis
-Bastu
Missa inte denna unika möjlighet att förvärva en bostad som kombinerar stil, funktion och frihet på ett sätt som sällan erbjuds på marknaden.
Kontakta oss för mer information eller för att boka en privat visning.
Vad innebär det att bo i en Lägenhet med äganderätt?
- Att äga en ägarlägenhet innebär ett direkt ägande, precis som att äga en villa, det vill säga att du har lagfart på din ägarlägenhet.
- Du styr helt over din ekonomiska situation vid ägarlägenhet. Du har hypotekslån jämförbart med att belåna en villa. Vid ägarlägenhet har du full kontroll over hela finansieringssituationen eftersom det inte finns några gemensamma lån med dina grannar i någon förening. Vid bostadsrätt har du dels ett län för din lägenhet (eller egentligen har du ingen lägenhet utan endast en rätt att f utnyttja en specifik lägenhet under obegränsad tid), dels har föreningen ett lån som du är bunden till. Det medför att du är starkt beroende av dina grannars finansiella situation eftersom ni har lån tillsammans.
- Det finns ingen konkursrisk vid ägarlägenhet eftersom det är en fastighet som du har Lagfart på och helt råder over. Vid bostadsrätt däremot kan föreningen gå i konkurs och du som lägenhetsinnehavare mister då rätten till lägenheten. Det är inte helt ovanligt att en bostadsrättsförening går i konkurs, det ar förödande eftersom de som bor i lägenheterna då blir utan bostad. Vid ägarlägenhet finns inte risken att dina grannars ekonomi spiller over på dig
- Ägarlägenheten kan överlåtas utan begränsning då det inte finns någon bostadsrättsförening som ska godkänna den nya köparen.
- Om du vill kan du hyra ut din ägarlägenhet och bli hyresvärd. Det är helt upp till dig som ägare av ägarlägenheten då det inte finns någon styrelse som först ska godkänna uthyrningen. När du hyr ut en ägarlägenhet är det att jämföra med att hyra ut ett småhus (villa). Den som hyr kommer vara hyresgäst i första hand.
Område: Södermalm
























